• 首页
  • 伟德国际1949
  • 新闻中心
  • 服务项目
  • 经典赏析
  • 合作品牌
  • 诚聘英才
  • 联系我们
  • 首 页Home
  • 伟德国际1949About Us
  • 新闻中心News
  • 服务项目Business
  • 经典赏析Product
  • 合作品牌Cooperation
  • 诚聘英才Join Us
  • 联系我们Contact Us

伟德国际1949-伟德国际1949

经典赏析Product
商业展示空间
办公展厅设计
酒店样板间设计
其他空间展示

您现在的位置:首页-经典赏析-商业展示空间

商业展示空间

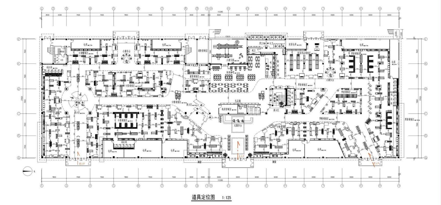
UST5000㎡超级卖场

       项目5000平位于苏州 卖场超级工厂店,卖场的设计运用色彩分区 形象墙绿植和木色渲染整体空间感,材质主要金属色、彩色烤漆 、水泥板等-卖场平面图,效果图方案,实景照片局部呈现

 

 

 

 上海店铺设计&商业空间设计&品牌SI设计&上海店面设计,找伟德国际1949 

more最新评论
我要评论
标 题:
姓 名:
内 容:
(必填)

伟德国际1949
公司简介
发展历程
企业文化
新闻中心
公司新闻
业界动态
设计理论
服务项目
创意品牌全案设计
SI标准设计
空间环境设计
道具施工执行
经典赏析
商业展示空间
办公展厅设计
酒店样板间设计
其他空间展示
合作品牌
您的品牌
PHILIPS品牌
猩便利品牌
阿里巴巴集团
晶科能源

联系我们

24小时客服热线:

           02151933175   13621998565

E-mail:design@yctlsk.cn

Add   :上海市长宁区中山西路1281号邑空间

微信号:hanyigroup      欢迎关注我们微信账号 漢邑建築!

Copyright 2010 ©伟德国际1949-店铺设计,商业空间设计,SI设计等 沪ICP备17017148号-1
上海店铺设计公司,伟德国际1949公司,上海SI设计公司,上海餐饮设计公司,上海室内设计公司,品牌设计|管理后台